
Project 01
About this project:
Planning Application + EnerPHit
Comprehensive Home Transformation & Energy Upgrade
SE16, London, UK
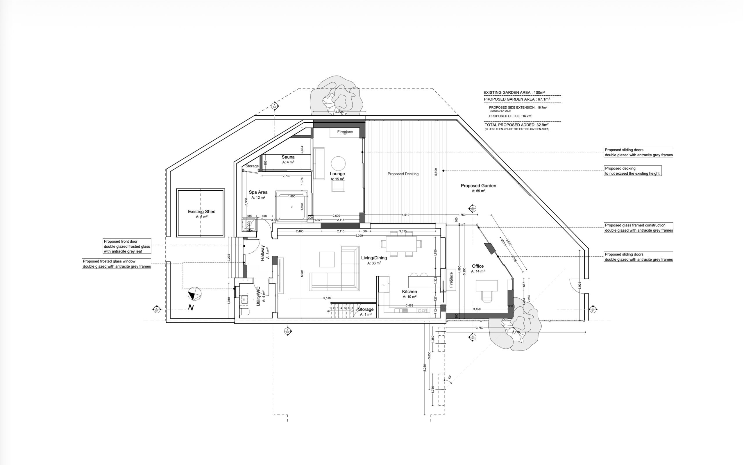
The project involved a full-scale redesign and extension of a 1980s end-of-terrace home in SE16, London. The works included replacing and enlarging the rear and side extensions, adding a new top floor, reconfiguring the ground floor layout, and upgrading all windows and doors. The design enhances the internal space, optimises natural light, and improves energy efficiency while respecting the surrounding streetscape.
Ground Floor Enhancements
The existing rear and side extensions were expanded to create a home office, lounge area, and spa zone with a jacuzzi and sauna. The ground floor layout was opened up to improve flow, integrate a larger utility room, and strengthen the connection to the garden with new glazing.
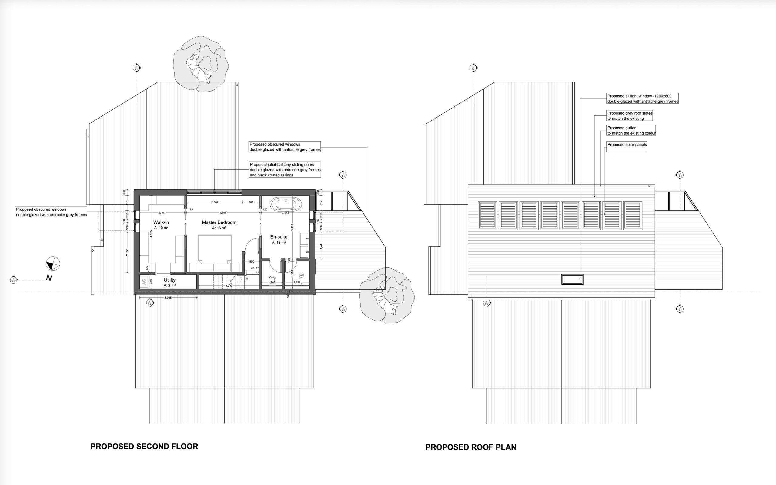
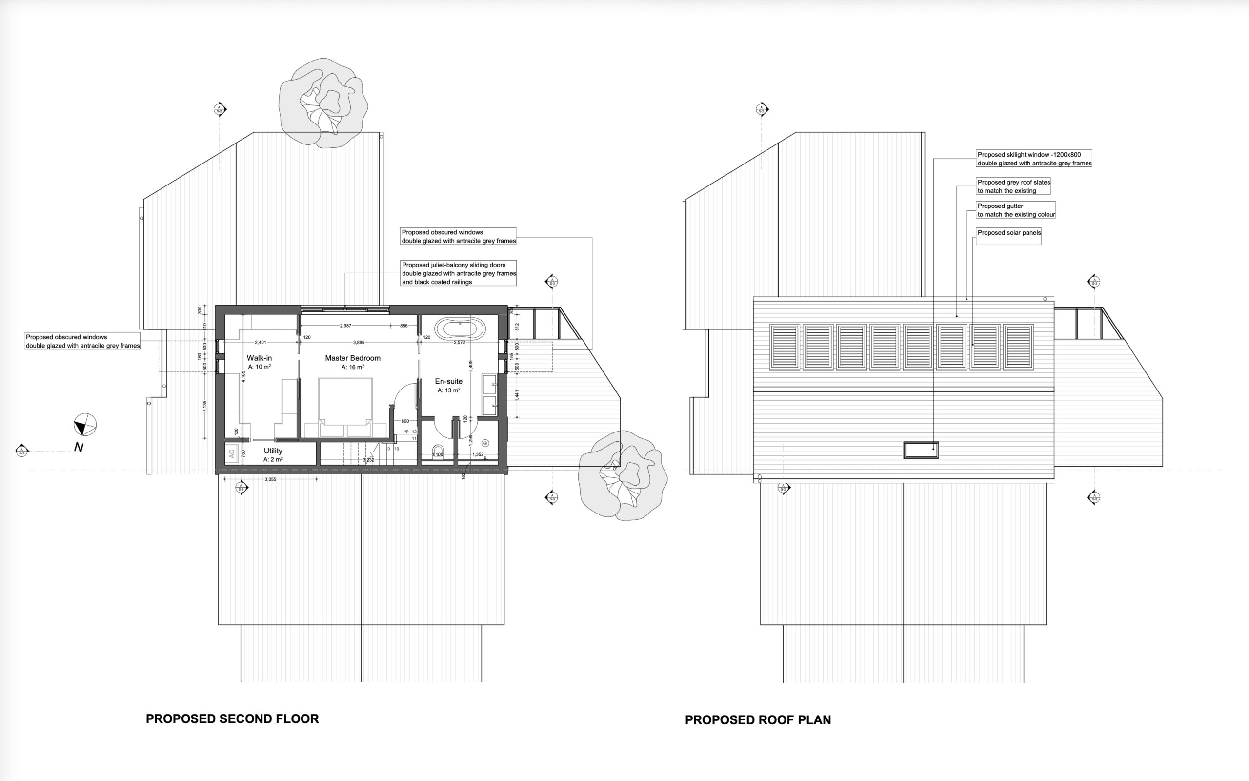
New Second Floor Addition
A new top floor was introduced, adding an additional bedroom with an en-suite, walk-in dressing room, and storage. A Juliet balcony enhances natural light and views, while frosted glass windows ensure privacy in key areas.
Architectural &
Energy Efficiency Upgrades
All windows and doors were replaced with anthracite grey, double-glazed units for improved insulation and aesthetic cohesion. A warm roof system replaced the existing cold roof, and a new heating system with underfloor heating and upgraded radiators was installed to enhance comfort and efficiency.
Sustainability &
Energy Performance
The project integrates solar panels, battery storage, and an EV charging point, significantly reducing energy consumption. Insulated brick walls, high-performance glazing, and an upgraded heating system contribute to an improved EPC rating from D to B, aligning with Southwark Council’s sustainability strategy.
Outcome
The result is a modern, energy-efficient home that balances practicality, comfort, and sustainability, enhancing everyday living while respecting the architectural character of the area.
















